Lictor u suradnji sa projektantom MR2 arhitektonski studio d.o.o
Lictor d.o.o. je nositelj i investitor ovog projekta u suradnji sa projektantom MR2 arhitektonski studio d.o.o.
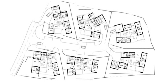
Projekt se sastoji od gradnje šest vila građevinske površine od cca 5500 m2 sukladno arhitektonsko-urbanističkoj studiji izrađenoj od strane MR2 arhitektonskog studia d.o.o ( projektanti Miroslav Rajić, dipl.ing.arh., Marin Račić, ovl.arh., Robert Keček, dipl.ing.arh.)
Građevinska parcela smještena je zapadno od mirnog naselja Jural, općine Kanfanar (središnja Istra), pod katastarskom česticom k.č. 4187/1, k.o. Mrgani –Jural. Površina parcele iznosi 5463 m2. Na parceli nema izgrađenih objekata, teren je u blagom padu prema jugoistok-sjeverozapad, uz ponešto visokog zelenila te bez hortikulturno uređenih površina.
Od komunalne infrastrukture u mjestu Jural postoji odvodnja, elektorenergetski, vodovod i telefonski kabel. Cestovna udaljenost od Jurala do grada Rovinja iznosi 26,70 km te do Vrsara 17,29 km. Prometna povezanost je odlična zbog blizine Istarskog ipsilona.
Građevinska čestica nepravilnog je trapezoidnog tlocrtnog oblika i proteže se u smjeru istok-zapad. Kolni i pješački pristup parceli je s zapada. Građevinsko zemljište podijeljeno je na 6 građevinskih čestica od kojih svaka iznosi cca 950 m2. Izgrađena je i pristupna cesta. Zemljište je smješteno na vrhu brežuljka i svojom kraćom zapadnom međom orijentirana je ka Limskom kanalu.









